Baybreeze Curated Contemporary Floorplans
2 BEDROOM | 2 BATH
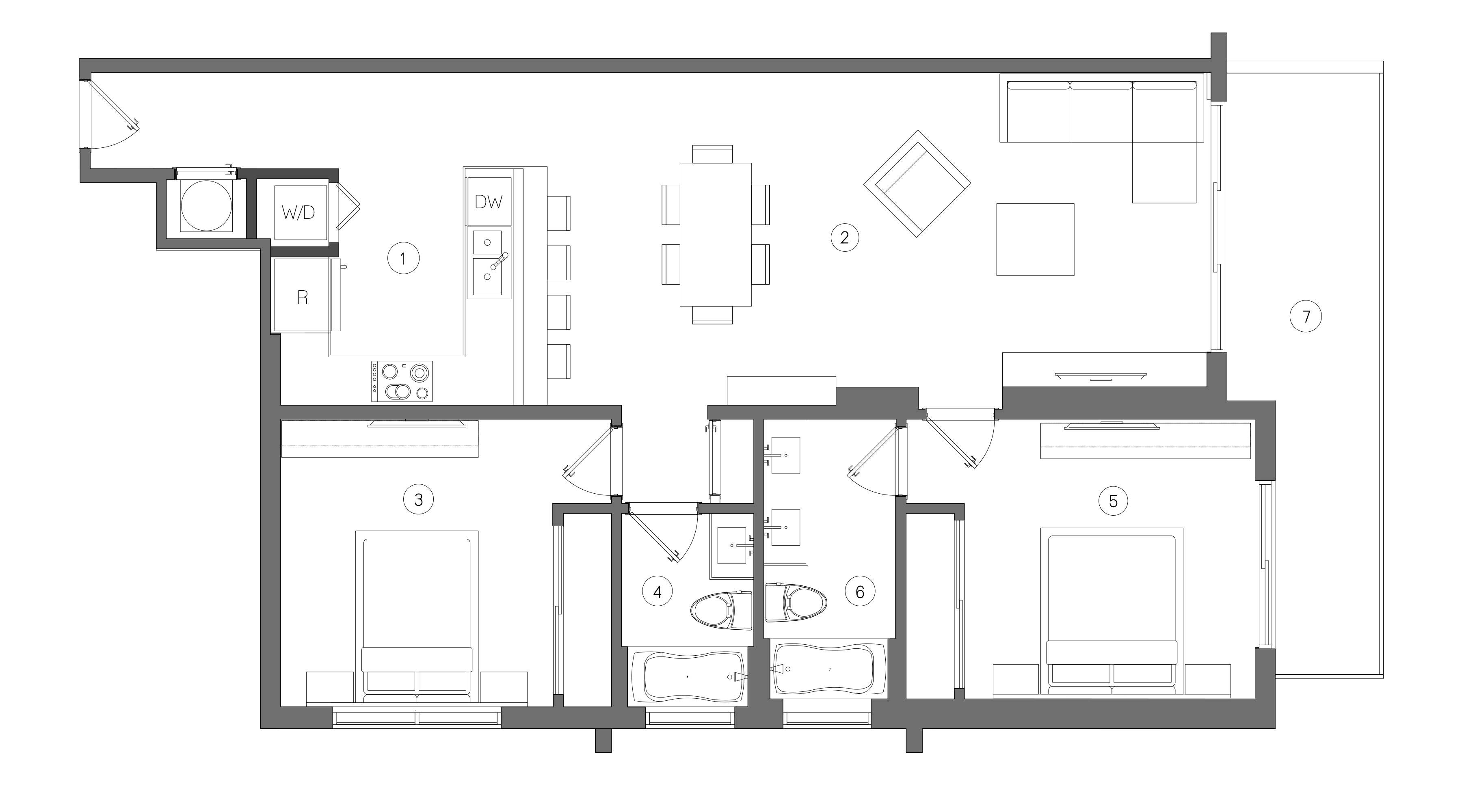
Residence A | Levels 2 & 3
Interior: 1,175 SF ~Terrace: 154 SF
1 - KITCHEN
10'-5" X 9'-7" | 3.18m X 2.92m
2 - LIVING / DINING
26'-7" X 14'-0" | 8.10m X 4.27m
3 - BEDROOM 2
11'-4" X 12'-0" | 3.45m X 3.66m
4 - BATHROOM 2
5'-6" X 8'-0" | 1.68m X 2.44m
5 - MASTER BEDROOM
12'-1" X 12'-0" | 3.68m X 3.66m
6 - MASTER BATH
'5'-6" X 12'-0" | 1.68m X 3.66m
7 - TERRACE
8'-0" X 25'-2" | 2.44m X 7.67m

2 BEDROOM | 2 BATH
Residence B | Levels 2 & 3
Interior: 1,236 SF ~Terrace: 123 SF
1 - KITCHEN
9'-6" X 9'-6" | 2.90m X 2.90m
2 - LIVING / DINING
27'-0" X 14'-0" | 8.23m X 4.27m
3 - BEDROOM 2
12'-0" X 12'-0" | 3.66m X 3.66m
4 - BATHROOM 2
5'-6" X 8'-0" | 1.68m X 2.44m
5 - MASTER BEDROOM
13'-11" X 12'-0" | 4.24m X 3.66m
6 - MASTER BATH
5'-6" X 12'-0" | 1.68m X 3.66m
7 - TERRACE
8'-0" X 13'-7" | 2.44m X 4.14m

1 BEDROOM + DEN | 1 BATH
Residence C | Level 4
Interior: 907 SF ~Terrace: 409 SF
1 - KITCHEN
14'-3" X 3" | 4.34m X 0.8m
2 - LIVING / DINING
18'-2" X 13'-1" | 5.54m X 3.99m
3 - DEN
9'-3" X 9'-3" 2.82m X 2.82m
4 - BEDROOM
12'-3" X 11'-10"
5 - MASTER BATH
5'-6" X 9'-9" | 1.68m X 2.97m
6 - TERRACE
9'-9" X 27'-9" | 2.98m X 8.46m
7 - TERRACE
4'-6" X 25'-2" | 1.45m X 7.67m

1 BEDROOM + DEN | 1 BATH
Residence C | Levels 5 & 6
Interior: 907 SF ~Terrace: 409 SF
1 - KITCHEN
14'-3" X 3" | 4.34m X 0.8m
2 - LIVING / DINING
18'-2" X 13'-1"5.54m X 3.99m
3 - DEN
9'-3" X 9'-3" | 2.82m X 2.82m
4 - BEDROOM
12'-3" X 11'-10" | 3.73m X 3.61m
5 - MASTER BATH
5'-6" X 9'-9" | 1.68m X 2.97m
6 - TERRACE
8'-10" X 6'-9" | 2.69m X 2.06m
7 - TERRACE
6'-0" X 13'-0" | 1.83m X 3.96m

2 BEDROOM | 2 BATH
Residence D | Levels 5 & 6
Interior: 1,324 SF ~Terrace: 175 SF
1 - KITCHEN
9'-10" X 11'-7" | 3.00m X 3.53m
2 - LIVING / DINING
26'-9" X 16'-0" | 8.15m X 4.88m
3 - DEN
11'-1" X 13'-6" | 3.38m X 4.11m
4 - BEDROOM
5'-6" X 10'-2" | 1.68m X 3.10m
5 - MASTER BATH
12'-0" X 16'-0" | 3.66m X 4.88m
6 - TERRACE
5'-6" X 12'-2" | 1.68m X 3.71m
7 - TERRACE
6'-0" X 29'-0" | 1.83m X 8.84m

2 BEDROOM | 2 BATH
Residence D | Level 4
Interior: 1,324 SF ~Terrace: 1,285 SF
1 - KITCHEN
9'-10" X 11'-7" 3.00m X 3.53m
2 - LIVING / DINING
26'-9" X 16'-0" 8.15m X 4.88m
3 - BEDROOM 2
11'-1" X 13'-6" | 3.38m X 4.11m
4 - BATHROOM 2
5'-6" X 10'-2" | 1.68m X 3.10m
5 - MASTER BEDROOM
12'-0" X 16'-0" | 3.66m X 4.88m
6 - MASTER BATH
5'-6" X 12'-2"| 1.68m X 3.71m
7 - TERRACE
9'-9" X 38'-10" | 2.97m X 11.84m
8 - TERRACE
7'-0" X 53'-8" | 2.13m X 16.36m
9 - TERRACE
9'-9" X 38'-10" | 2.97m X 11.84m


BAYBREEZE ROOF DECK

